みつわ台四丁目 中古戸建 千葉県千葉市若葉区みつわ台4丁目|中古一戸建て
| 価格 | 1,600万円 ![]() |
||||
|---|---|---|---|---|---|
| 所在地 | 千葉県千葉市若葉区みつわ台4丁目
この地域周辺の物件を見る |
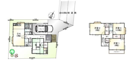
土地面積 | 132m² (39.93坪) | 建物面積 | 83.63m2 |
| 築年月 | 1987年8月築 | 間取り | 4DK (DK9/和室6/洋室6/洋室6/洋室4.5) | ||
| 交通 |
千葉都市モノレール みつわ台 徒歩9分
JR総武本線 都賀 バス10分 みつわ台4丁目 停歩3分 |
||||
| 特徴 |
|
|---|---|
| セールスコメント | 売主契約不適合責任免責 検査済証番号 第 公建12-1 号 |
| 採光面 | 南 | 構造/階数 | 木造/地上2階建 |
|---|---|---|---|
| 建ぺい率 | 50(%) | 容積率 | 100(%) |
| 駐車場 | 有 | 現況/引渡し | 空家/即時 |
| 土地権利 | 所有権 | 私道負担面積 | あり 72m² 持分:3/7 |
| 接道状況 | 接道: 北 3.5m 私道 道路幅: 4m | 用途地域 |
第一種低層住居専用地域
|
| セットバック | - | 法令上の制限 | 景観法;宅地造成工事規制区域 |
| 地目 | 宅地 | 地勢 | 平坦 |
| 建築確認番号 | 第公建12-1号 | 都市計画 | 市街化区域 |
| 取引態様 | 専任媒介 | ||
| 情報更新日 | 2026年04月10日 | 次回更新日 | 2026年04月24日 |
| 小学校区 | 千葉市立みつわ台北小学校 (千葉県千葉市) この学区の他の物件を見る |
中学校区 | みつわ台中学校 (千葉県千葉市) この学区の他の物件を見る |
|---|
| 価格 | 万円 | ||
|---|---|---|---|
| 年利率 | % |
||
| ボーナス払い | 返済年数 | ||
| 頭金 | 直接入力する | 万円 | |

毎月のご返済額 |
ボーナス(×年2回) |
物件価格1,600万円 |
以前はグループホームでご利用されていた為に準バリアフリー仕様になっています。室内大変綺麗です。日当たり良好です。