千葉サニータウン314号 千葉県千葉市中央区祐光2丁目|中古マンション|分譲住宅や新築物件
| 価格 | 2,188万円 ![]() |
||||
|---|---|---|---|---|---|
| 所在地 | 千葉県千葉市中央区祐光2丁目
この地域周辺の物件を見る |
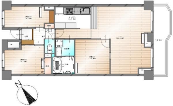
専有面積 | 74.2m2 | 築年月 | 1984年3月築 |
| 交通 |
JR総武本線 東千葉 徒歩3分
|
管理費等 | 13,400円 | 修繕積立金 | 10,500円 | 所在階/階数 | 3階/地上16階建 | バルコニー面積 | 7.92m² |
| 間取り | 3LDK (-) | ||||
| 特徴 |
|
|---|---|
| セールスコメント | JR総武線「東千葉」駅徒歩3分の好立地 オートロックや防犯カメラで安心性も高いです |
| 採光面 | 東南 | 取引態様 | 専任媒介 |
|---|---|---|---|
| 現況 | 空室 | 引渡し | 相談 |
| 総戸数 | 261戸 | 構造 | SRC造 |
| テラス面積 | - | 専用庭面積 | - |
| 駐車場 | なし | 駐輪場 | - |
| 建物権利 | - | 土地権利 | 所有権 |
| 用途地域 | 商業地域 - - | 管理態様 | 管理形態:日勤 管理組合:なし 管理会社:日本ハウズイング |
| 情報更新日 | 2026年01月13日 | 次回更新日 | 2026年01月27日 |
| 小学校区 | 千葉市立院内小学校 (千葉県千葉市) この学区の他の物件を見る |
中学校区 | 椿森中学校 (千葉県千葉市) この学区の他の物件を見る |
|---|
| 価格 | 万円 | ||
|---|---|---|---|
| 年利率 | % |
||
| ボーナス払い | 返済年数 | ||
| 頭金 | 直接入力する | 万円 | |

毎月のご返済額 |
ボーナス(×年2回) |
物件価格2,188万円 |
JR総武線「東千葉」駅徒歩3分の好立地で、交通の利便性に優れた土地です!
管理体制がよく共用部や植栽も清潔に保たれ、オートロックや防犯カメラで安心性も高いです